.header__wrapper { opacity: 1; } [Skip to content]

£215,000 Bengeo Street, Hertford

  • Bedrooms icon 1 bedrooms
  • Bathrooms icon 1 bathrooms
  • Receptions icon 1 receptions

About property

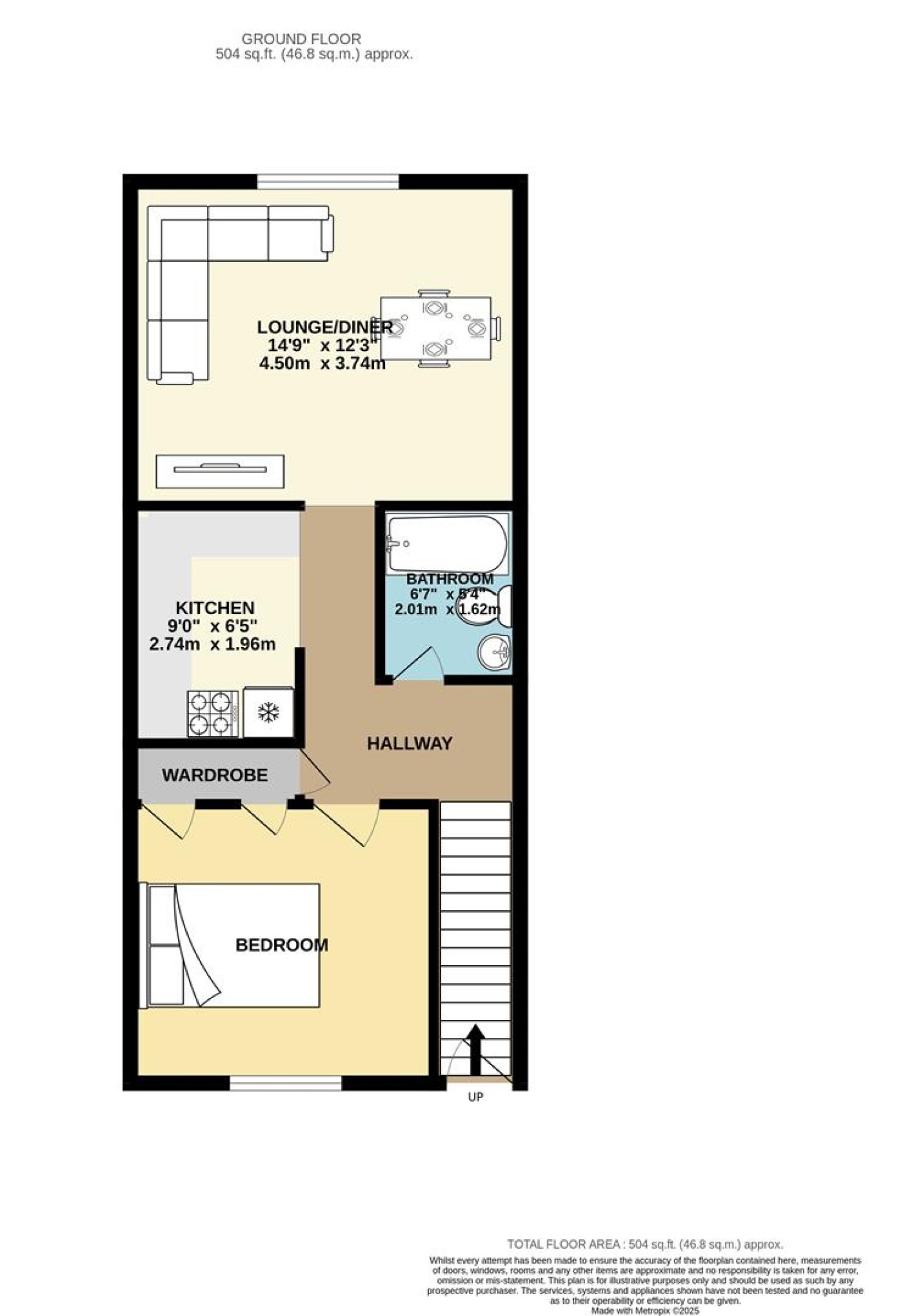
Steven Oates are delighted to offer this larger than average one bedroom top floor maisonette situated within a highly regarded and peaceful development in Bengeo. The property benefits from a generous size double bedroom with built in storage, fitted bathroom suite, additional storage off the hallway. The kitchen is partly open to the living room perfect for modern day living and there is enough space in the living room for dining table & chairs. Externally, there is allocated parking and well kept communal grounds. Internal viewing highly recommended !


Downloads

Download additional items below...


Share

Features

  • Top Floor Maisonette
  • Allocated Parking
  • Quiet Leafy Area
  • Desirable Bengeo Location
  • Spacious One-bedroom Property
  • Viewing Advised

Location

Viewing request

If you would like to see more of this property and book a viewing, please either call us on 01992 303300 or fill out the form below and we will contact you.

Calculator

Mortgage Calculator

Repayments:
{{ mortgageResults }}/month

Please note that the above is an estimate, and actual results may vary. Please do not use the above value for financial planning

Stamp Duty Calculator

Total: {{ stampDutyResults }}

Price Rate Tax
£{{ row.band }} {{ row.rate }}% £{{ row.tax }}

Please note that the above is an estimate, and actual results may vary. Please do not use the above value for financial planning