.header__wrapper { opacity: 1; } [Skip to content]

£460,000 Palmer Road, Bengeo

  • Bedrooms icon 2 bedrooms
  • Bathrooms icon 1 bathrooms
  • Receptions icon 2 receptions

About property

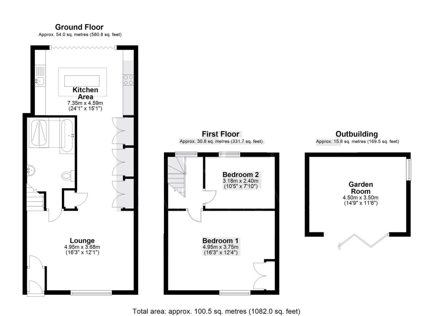
Steven Oates are delighted to offer this two bedroom extended mid terrace house, situated in a sought after residential road within Bengeo. Arranged over two levels, the property offers spacious accommodation with scope for further extension (Subject to the usual consents). On the ground floor, there is an entrance hallway leading to the lounge and first floor landing, the lounge leads to a nice L shape kitchen/dining area. On the first floor, there are two double bedrooms. Externally, there is off street parking whilst to the rear, the garden has been landscaped mature & secluded. There is a modern garden room which has power & lighting with bi fold doors. Internal viewing highly recommended.


Downloads

Download additional items below...


Share

Features

  • Extended Family Home
  • 2 Bedrooms
  • Extended Kitchen
  • Recently Built Garden Room/studio
  • Driveway Parking

Location

Viewing request

If you would like to see more of this property and book a viewing, please either call us on 01992 303300 or fill out the form below and we will contact you.

Calculator

Mortgage Calculator

Repayments:
{{ mortgageResults }}/month

Please note that the above is an estimate, and actual results may vary. Please do not use the above value for financial planning

Stamp Duty Calculator

Total: {{ stampDutyResults }}

Price Rate Tax
£{{ row.band }} {{ row.rate }}% £{{ row.tax }}

Please note that the above is an estimate, and actual results may vary. Please do not use the above value for financial planning